Stadtentwicklungsgebiet Erzherzog-Karl-Straße Süd – Der Weg zu einem klimafreundlichen Stadtteil

© Stadt Wien
Beidseits der U-Bahn-Linie U2 zwischen der Erzherzog-Karl-Straße und der Langobardenstraße wird der neue, klimafreundliche Stadtteil „Erzherzog-Karl-Straße Süd“ entstehen. Die im Stadtentwicklungsplan für Wien ausgewiesene, rund 19 Hektar große Fläche wird Platz zum Wohnen und Arbeiten, zum Einkaufen und für die Freizeit bieten.
Als Planungsgrundlage wurde von April bis Oktober 2021 ein städtebaulicher Wettbewerb durchgeführt. Davor, Ende Februar bis Anfang März 2021, hatte die Bevölkerung die erste Möglichkeit, Anregungen und Ideen einzubringen. Die eingelangten Rückmeldungen wurden den Planer*innen sowie den Jury-Mitgliedern des Wettbewerbs vorgelegt.
Städtebaulicher Wettbewerb
In der ersten Phase des Wettbewerbs haben 30 Planungsbüros aus Österreich, Deutschland, Spanien, Portugal und Italien teilgenommen und ihre städtebaulichen Ideen für das Projektgebiet präsentiert. Aus den 30 Beiträgen wurden im Juni 2021 sechs Projekte für eine vertiefende Weiterbearbeitung ausgewählt.
Siegerteam
Im Oktober 2021 wurde aus diesen sechs Projekten der Gewinner des Wettbewerbs von einer namhaften Jury aus Architektur, Städtebau, Freiraumplanung, Vertreter*innen der Stadt Wien, der Bauträger*innen und Fachleuten für Klimafragen und Verkehrsplanung gekürt. Das Siegerprojekt stammt vom Wiener Architekturbüro SUPERBLOCK und vom Wiener Freiraumplanungsbüro YEWO LANDSCAPES. Die beiden Büros haben die seitens der Bürger*innen formulierten Anregungen und Wünsche aufgegriffen und in ihre Planungsüberlegungen einfließen lassen.
Städtebauliches Leitbild
Das Siegerprojekt soll zu einem sogenannten Städtebaulichen Leitbild weiterentwickelt werden. Darin werden konkrete Aussagen zur Umsetzung der Ziele für ein lebenswertes Stadtviertel getroffen, wie die Gestaltung der Bebauung, die Anpassung an den Klimawandel, attraktive Grün- und Freiflächen und umweltfreundliche Mobilität.

Städtebauliches Modell des Siegerprojekts © Superblock/Yewo
Das Siegerprojekt
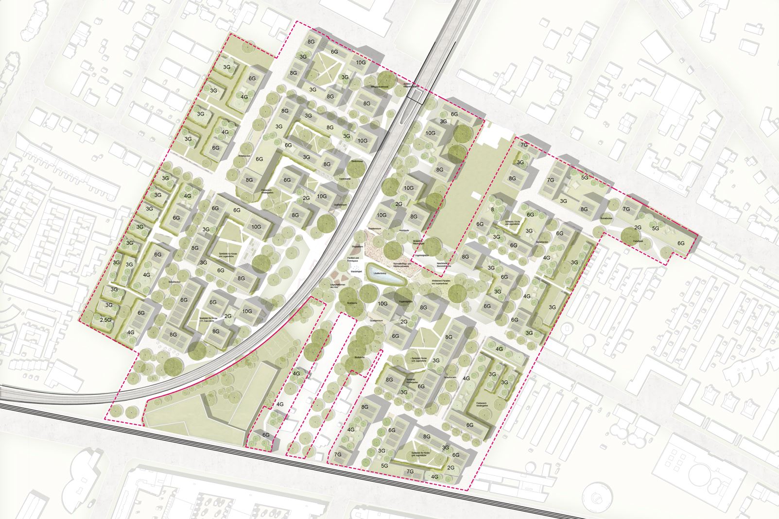
Das Siegerprojekt versteht sich als ein Puzzlestein im Stadtraum, der die vorhandenen Siedlungen berücksichtigt, ergänzt und verbindet. Es werden Wege weitergeführt und neu geknüpft. Es wird auf die bestehende Bebauung in der Umgebung reagiert und die neue Parkanlage bestmöglich an die Nachbarschaft angebunden.
Die Bebauung
Die Wohnungen werden in vier Gebäudetypen untergebracht (in den Plänen jeweils rosa gekennzeichnet):

© Superblock
„Vermittler“
Dreigeschoßige Gebäude sind zu den Gebietsrändern im Osten und Westen orientiert. Im Quartiersinneren sind kleine, vier- bis sechsgeschoßige Wohnungsbauten geplant.

© Superblock
„Urbane Baufelder“
Die Ausbildung klarer Kanten an der Erzherzog-Karl-Straße und der Langobardenstraße erfolgt durch vier- bis achtgeschoßige Gebäude. Im Bereich U2-Station Aspernstraße, gegenüber Wonkaplatz, sind Gebäude mit zehn Geschoßen vorgesehen.

© Superblock
„Stadtkronen“
Sechs- bis zehngeschoßige Gebäudegruppen aus je drei Häusern werden zum neuen Park orientiert. Im Erdgeschoß sind Gemeinschaftsräume geplant.

© Superblock
„Baufelder am Park“
Drei- bis achtgeschoßige Wohngebäude sind im Quartiersinneren vorgesehen. Die stark durchgrünten Innenhöfe öffnen sich zum Park.

© Superblock
Mobilität
Das Gebiet ist mit zwei U-Bahn-Stationen, einer Straßenbahn und verschiedenen Buslinien hervorragend an das öffentliche Verkehrsnetz angebunden. Das Stadtquartier soll daher verkehrsberuhigt und weitgehend autofrei sein. Es werden viele neue Wegeverbindungen für Radfahrer*innen und Fußgänger*innen geschaffen. Für private PKW wird es in Sammelgaragen die erforderlichen Stellplätze geben.

© Superblock
Die Zufahrt zu den Sammelgaragen erfolgt auf kurzem Weg. Eine Durchfahrt mit dem Auto ist nicht möglich. In Mobilitätsstationen werden unterschiedliche Mobilitätsangebote miteinander verknüpft. Vorgesehen sind beispielsweise E-Car- und Bikesharing, Ladesäulen für Elektrofahrzeuge und Fahrrad-Servicestationen.
Die „Adressadern“
Die beiden in Nord-Süd-Richtung verlaufenden, sogenannten Adressadern binden an die Erzherzog-Karl-Straße und Langobardenstraße an. Sie sind nur für Radfahrer*innen, Einsatz- und Müllfahrzeuge befahrbar. Eine attraktive Gestaltung dieser Räume mit kleinen Quartiersplätzen und schattenspendenden Bäumen schafft eine gute Aufenthaltsqualität und verbessert das Mikroklima. Gemeinschaftsräume und Kindergärten im Erdgeschoß der Wohnhäuser beleben diese Straßenräume.
Der Park
Der neue, über zwei Hektar große Park liegt in der Mitte des Gebietes, beidseits der U-Bahntrasse. Da sich der Park mit der Bebauung verzahnt, ist er gut erreichbar und vielseitig nutzbar. Eine besondere Atmosphäre bietet der Raum unter der U-Bahntrasse, wo zahlreiche Aufenthalts-, Spiel- und Sportmöglichkeiten geplant sind. Der bestehende Fuß- und Radweg entlang der U-Bahntrasse bleibt bestehen. Neben der Freiraum- und Erholungsnutzung dient der Park auch als naturnaher Lebensraum für Tiere und Pflanzen.
Dach- und Gebäudebegrünung
Begrünte Dächer bieten Platz für gemeinschaftliche Aktivitäten und für Photovoltaik-Anlagen. Fassadenbegrünungen verbinden die ebenerdigen Grünflächen mit den begrünten Dächern und tragen somit zur biologischen Vielfalt bei.
Anpassung an den Klimawandel
Gegen Überhitzung im Sommer werden die Wege und Plätze überwiegend unversiegelt und hell hergestellt. Regenwasser wird oberflächlich in Sickerbecken gesammelt, um Starkregenereignisse abzufedern und den natürlichen Wasserkreislauf zu erhalten. Um die Entstehung von Hitzeinseln zu vermeiden, werden zahlreiche Bäume gepflanzt.
Anregungen aus der Bürger*innenbeteiligung
Im Siegerprojekt konnten folgende Anregungen und Ideen aus der ersten Bürger*innenbeteiligung berücksichtigt werden:
✓ Rücksichtnahme auf angrenzende Nutzungen und Bebauung
✓ Keine Hochhäuser (Gebäude höher als 35 m)
✓ Großzügige öffentliche Parkfläche
✓ Hoher Grünanteil/viele Baumpflanzungen
✓ Naturhafte Grünbereiche/Lebensräume für Pflanzen und Tiere
✓ Fassaden- und Dachbegrünung
✓ Bauplatzübergreifendes Regenwassermanagement
✓ Öffentliche Aufenthalts- und Platzzonen zum Verweilen
✓ Öffentliche Sport- und Spielflächen
✓ Verkehrsfreies Wohnquartier
Aus folgenden Gründen konnten aber nicht alle Anliegen berücksichtigt werden:
Wien hat sich in den letzten 50 Jahren von einer schrumpfenden Stadt zu einer jungen und wachsenden Stadt entwickelt. Daher müssen weiterhin neuer Wohnraum und gleichzeitig attraktive Grün- und Erholungsflächen geschaffen werden. Wien ist bestrebt, die neue Wohnbevölkerung im Stadtgebiet zu halten, um zusätzlichen, einpendelnden Berufsverkehr aus dem Umland möglichst zu vermeiden. Um den Bodenverbrauch klein zu halten, ist eine kompakte Siedlungsentwicklung erforderlich, die hochrangig mit öffentlichen Verkehrsmitteln erschlossen wird. Das bedeutet, dass qualitätsvolle Bebauungsdichten umgesetzt werden müssen, um gleichzeitig auch Grün- und Freiräume
erhalten zu können.
Im sehr gut erschlossenen Stadtentwicklungsgebiet Erzherzog-Karl-Straße Süd sind daher im Quartiersinneren auch höhere Gebäude geplant, um Platz für einen zwei Hektar großen, frei zugänglichen Park freizuhalten. Zusätzlich wird es Spiel- und Sportplätze, ein durchgrüntes Wegenetz und Plätze zum Aufenthalt und Durchstreifen des Gebiets geben.
Bei den Planungen stehen umweltfreundliche Mobilitätsformen im Vordergrund. Ziel ist, dass die bestehenden Verkehrsbelastungen im Projektumfeld durch zusätzliche Autos nicht wesentlich erhöht werden.
Zum Newsletter anmelden (Stadtentwicklung Donaustadt ankreuzen)
Weitere Informationen zum Projekt finden Sie hier




Hinterlasse einen Kommentar
An der Diskussion beteiligen?Hinterlasse uns deinen Kommentar!